projet – Extension d’un hôtel 4 étoiles sur un passage classé monument historique
lieu – Paris VIII
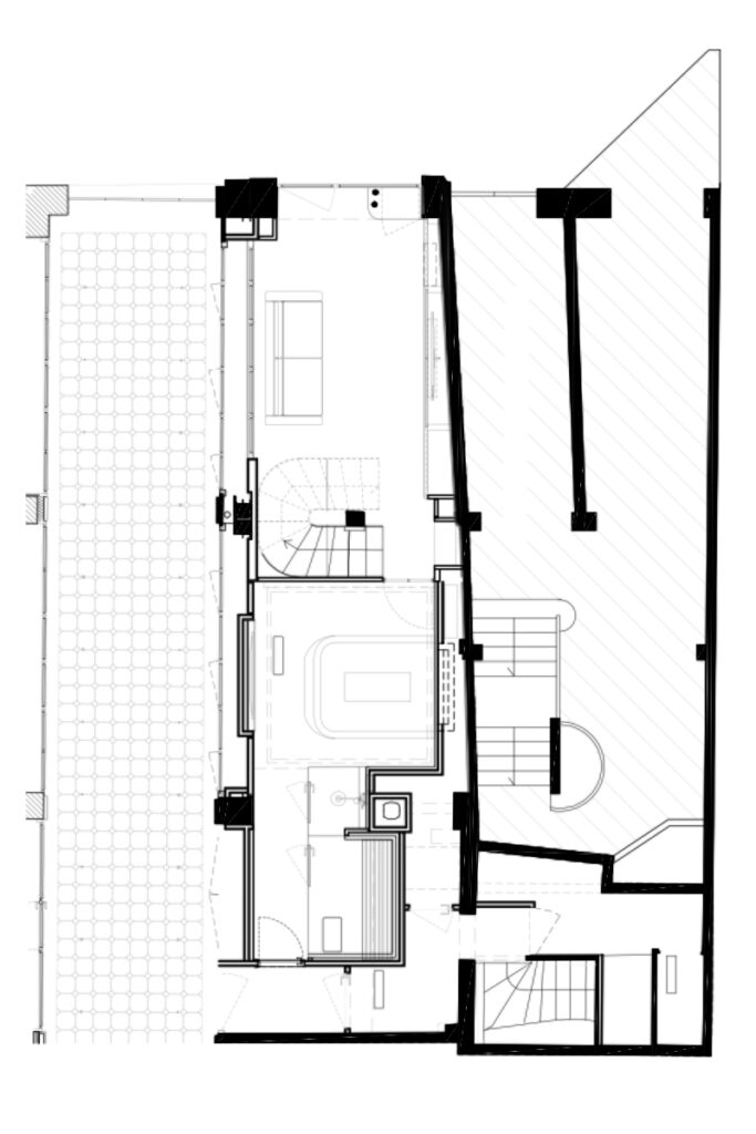
surface – 80m2
budget – 1M € HT
maitre d’oeuvre – effe architecture
mission – complète
date – 2025
photo crédits – Christophe BIELSA
Situé dans un palais historique du 8e arrondissement de Paris, le Royal Madeleine jouxte le prestigieux Passage Puteaux classé. Nous avons transformé un ancien bureau en une suite hôtelière 4* avec spa, mariant modernité, luxe et respect du patrimoine. L’intervention englobe la création d’un espace bien-être (sauna et bassin à bulles), harmonisé avec l’architecture d’origine, pour offrir une expérience unique au cœur de la capitale. Cette rénovation préserve l’âme du lieu et la qualité de ses détails d’époque.






