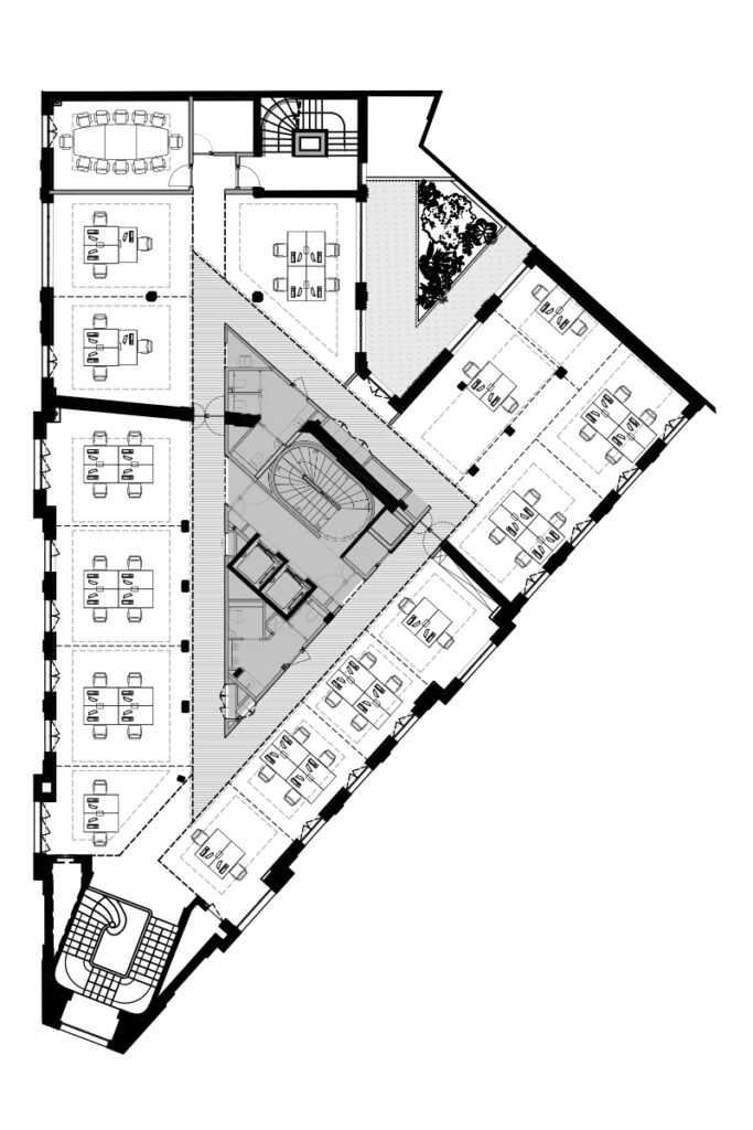
projet – restructuration d’un immeuble de bureaux en certification BREEAM
lieu – Paris XVII
surface – 3 200m2
budget – 3,8M € HT
maitre d’oeuvre – effe architecture pour Alexis Duquennoy, Heros Architecture, EOC (BET Structure), Cegetec (BET Fluides et Economiste) , Tribu (BET HQE) , Alternative Acoustique (BET Acoustique)
mission – complète
date – 2017
photo crédits – DUMEZ IDF
Le




